Luiz Solano

Arquitetura

Objetos

Sobre

Apartamento 4
São Paulo, Brasil, 2025.

Apartamento 4


Em colaboração com Flora Oficina

 

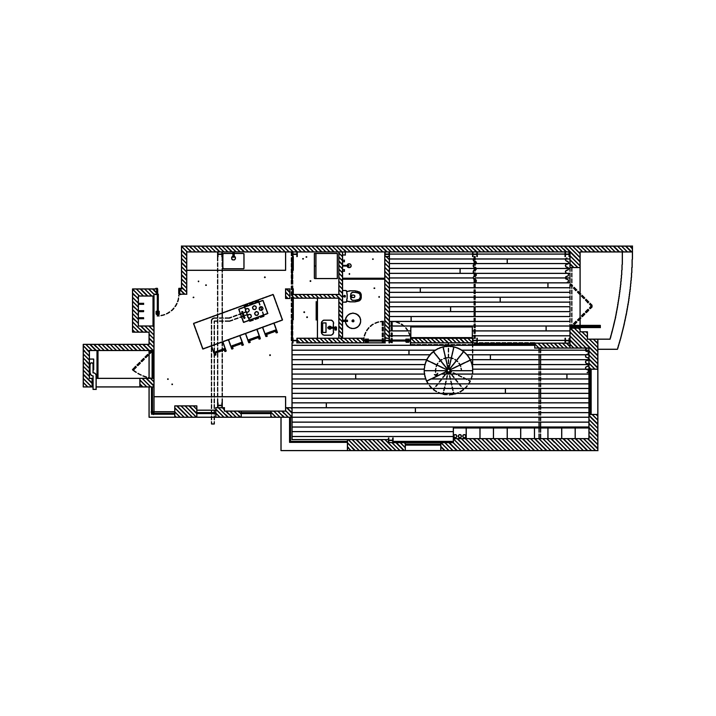
O apartamento se localiza no último andar de um edifício dos anos 1940, em que não existe laje de cobertura e sim um telhado com tesouras de madeira maciça. Em uma reforma, o antigo proprietário já havia demolido o forro de estuque e feito um mezanino. Com isso, o apartamento ganhou um pé direito em seu maior ponto de 6 metros.

 

O projeto para o apartamento toma partido da reforma que foi feita e redesenha o mezanino em estrutura metálica e concentra quase todo o programa neste novo volume, liberando todo o resto do espaço, como uma casa dentro de um apartamento.

 

Este volume é quase todo fechado com paredes de dry-wall. Possui uma janela para a sala no andar de cima e algumas portas no térreo que dão acesso ao banheiro, ao escritório, à dispensa e à lavanderia. Uma escada helicoidal metálica dá acesso ao andar de cima fica no centro da sala, dividindo o ambiente.

 

A cozinha ocupa um espaço anterior ao da sala, onde o volume do mezanino está. Estes espaços são divididos por uma viga de concreto existente e é neste ponto em que o pé direito ganha maior altura. A cozinha se divide em 3 bancadas, duas nas paredes laterais e uma de inox, ao centro.

 

(EN)

 

The apartment is located on the top floor of a 1940s building, where there is no concrete roof slab but rather a pitched roof supported by solid wood trusses. In a previous renovation, the former owner had already demolished the plaster ceiling and built a mezzanine. As a result, the apartment gained a ceiling height of up to 6 meters at its highest point.

 

The project takes advantage of this prior intervention and redesigns the mezzanine using a metal structure, concentrating almost the entire program within this new volume, thereby freeing up the rest of the space—like a house within an apartment.

 

This volume is almost entirely enclosed with drywall partitions. It features a window overlooking the living room on the upper level and several doors at ground level that provide access to the bathroom, office, pantry, and laundry room. A metal spiral staircase, located at the center of the living room, provides access to the upper level and divides the space.

 

The kitchen occupies the area adjacent to the living room, where the mezzanine volume is located. These spaces are separated by an existing concrete beam, and it is at this point that the ceiling height reaches its maximum. The kitchen is organized into three countertops: two along the side walls and a central stainless steel island.

Ano

2025

Área

140

Status

Em andamento

Local

São Paulo, Brasil

Arquitetos

Facundo Fernandez, Camila Alba, Gabriel Murad

Fechar

Luiz Solano (São Paulo, 1995) é arquiteto formado pela Escola da Cidade, em 2018. Em 2019, fundou Clube, com Gabriel Biselli, onde foi responsável por projetos de arquitetura e mobiliário. No Clube, tiveram trabalhos selecionados em concursos de arquitetura, publicados em revistas independentes e presentes em exposições, no Brasil e no exterior. Também organizaram uma série de palestras, exposições e workshops com arquitetas e arquitetos do Brasil e do mundo.

 

Em julho de 2022, Luiz Solano fundou seu próprio escritório de arquitetura, baseado em São Paulo, Brasil. O escritório se localiza nos Campos Elíseos, junto à fabrica onde as peças são produzidas. Além da produção de mobiliário, o escritório se dedica a projetos de arquitetura e promoção de eventos dedicados à discussão das disciplinas de arquitetura e design. No espaço do escritório, além do showroom do mobiliário em estoque, aconteceram 3 eventos desde a sua abertura: 1 exposição coletiva de arte e 2 exposições de mobiliário de escritórios convidados.

Formação

2013-2018

Graduação em Arquitetura e Urbanismo pela Escola da Cidade, em São Paulo.

2015

Workshop I.U.A.V., em Veneza, Itália.

2017

Intercâmbio no Politécnico di Milano, em Milão, Itália.

Atuação

2016-2017

Grupo Técnico da Escola da Cidade, São Paulo, Brasil (estágio/internship)

2017

Salottobuono, Milão, Itália (estágio/internship)

2018

Metro Arquitetos, São Paulo, Brasil (estágio/internship)

2019-2022

Clube, São Paulo, Brasil (ex-sócio-fundador/ex-founding partner)

Camila Alba
Gabriel Murad

 

Colaboradores passados

Renan Marques


Site
Design e Desenvolvimento: Sarah Matos
Shopify: Julia Baptista

Fechar

2023

IAB-SP – cadeira SM1 premiada na categoria objetos da premiação anual do Instituto dos Arquitetos do Brasil

2019

Outros Territórios – proposta selecionada em concurso de arquitetura. Belo Horizonte, Brasil (CLUBE)

2019

O Turvo, São Paulo (CLUBE)

2019

Acces for All — São Paulo’s Architectural Infrastructures, Zurich (CLUBE)

2020

NESS Magazine, Buenos Aires (CLUBE)

2020

Unlearning Public Spaces — Täglich Trendbook, Stuttgart (CLUBE)

2020

Carte Blanche n. 6, Paris (CLUBE)

2021

Revue Fantome #3, Paris (CLUBE)

2021

Podcast: Antropofago Productions, Milão (CLUBE)

2024

PLOT #71, Buenos Aires (CLUBE)

Fechar

2019

Duas das Cinco – exposição coletiva O Grande Susto, de curadoria de Guilherme Teixeira. São Paulo, Brasil (CLUBE)

2020

Please do not disturb – exposição individual de curadoria de Facundo Fernández no MONTE. Buenos Aires, Argentina (CLUBE)

2021

De ontem pra hoje já era amanhã – participação em exposição individual de pedro frança na Galeria Jaqueline Martins. São Paulo, Brasil (CLUBE)

2021

Meião – exposição coletiva Disfuncional com curadoria de Marina Dalgalarrondo na Galeria Jaqueline Martins. São Paulo, Brasil (CLUBE)

2021

A Bruta Flor do Querer – exposição coletiva Cinema Nervi, com curadoria de Parasite 2.0 no Manifattura Tabacchi. Florença, Itália (CLUBE e Martinica Space)

2023

Fundo Falso – exposição coletiva, na Acrilar. São Paulo, Brasil

2023

DW23 – exposição coletiva de mobiliário, na Galeria Metrópole. São Paulo, Brasil

2023

MADE – participação em feira de design, no estádio do Pacaembú. São Paulo, Brasil

2024

Sp-Arte – exposição coletiva “Tátil: materiais no design contemporâneo”, com curadoria de Livia Debbané, no pavilhão da Bienal. São Paulo, Brasil

2024

Oco Ocê – participação em exposição coletiva, com curadoria de Marina Schiesari, no Quase Espaço. São Paulo, Brasil

2019

Rooms, etc. – exposição independente de trabalhos do escritório italiano Salottobuono. São Paulo, Brasil (CLUBE)

2019

Conforto Prescrito – exposição independente de trabalhos do escritório argentino Flora Oficina. São Paulo, Brasil (CLUBE)

2020

Arquiteturas de Lugar Nenhum – exposição independente de trabalhos do workshop. São Paulo, Brasil (CLUBE e Parasite 2.0)

2021

Disfuncional – exposição coletiva com curadoria de Marina Dalgalarrondo na Galeria Jaqueline Martins. São Paulo, Brasil (CLUBE)

2021

Depois da Pedra – exposição individual de Paulo Pires com curadoria de Germano Dushá na Mendes Wood DM. São Paulo, Brasil (CLUBE)

2019

Os Espaços de Arquitetura – conversa com Davide Sacconi (CAMPO) e Abdelkader Damani (FRAC Centre-Val de Loire). São Paulo, Brasil (CLUBE)

2019

Rooms, etc. – exposição independente e palestra do escritório italiano Salottobuono. São Paulo, Brasil (CLUBE)

2019

Arquiteturas de Lugar Nenhum – palestra e workshop com Parasite 2.0. São Paulo, Brasil (CLUBE)

2020

Arquiteturas de Lugar Nenhum – palestra e workshop com Parasite 2.0. São Paulo, Brasil (CLUBE)

2023

Fundo Falso – exposição coletiva com organização de Ainda Brasil. São Paulo, Brasil.