Luiz Solano

Arquitetura

Objetos

Sobre

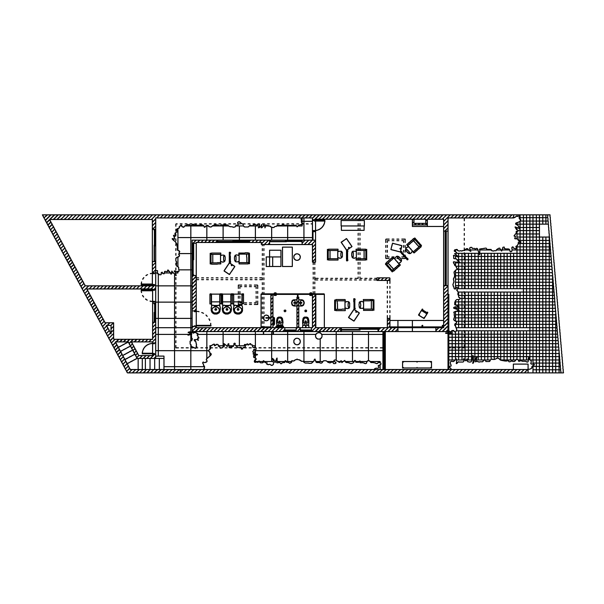
Salão de cabeleireiros
São Paulo, Brasil, 2026.

Salão de cabeleireiros


O salão de cabeleireiros ocupa um imóvel que já havia sido reformado anteriormente. Todas as paredes internas foram demolidas e substituídas por vigas metálicas, o que fez com que o espaço interno ficasse completamente integrado.

 

O projeto partiu de operações simples, como inverter as portas dos banheiros, a demolição de parte da fachada para fazer a entrada e a construção de duas clarabóias para melhorar a iluminação natural do ambiente. Desde a rua, as clarabóias remetem a torres ou chaminés de fábrica, e são os elementos mais característicos da intervenção.

 

Para o mobiliário, foram desenhados sistemas de espelho dupla-face articulados com armários de madeira tingida para o salão. As estações de corte são móveis e podem se associar das mais diversas formas. Além disso, mobiliários fixos como armários e bancadas para a recepção e armazenamento são construídos em uma mesma chapa de mdf colorido.

 

(EN)

 

The hair salon occupies a space that had already undergone a previous renovation. All internal walls had been demolished and replaced with metal beams, resulting in a fully integrated interior.

 

The project was based on simple interventions, such as reversing the bathroom doors, partially demolishing the façade to create the entrance, and adding two skylights to improve natural lighting within the space. From the street, these skylights resemble towers or factory chimneys and are the most distinctive elements of the intervention.

 

For the furnishings, double-sided articulated mirror systems were designed, combined with stained wood cabinetry for the salon. The cutting stations are mobile and can be arranged in various configurations. In addition, fixed elements such as cabinets and countertops for reception and storage are constructed from a single sheet of colored MDF.

Ano

2026

Área

100

Status

Em construção

Local

São Paulo, Brasil

Arquitetos

Camila Alba

Fechar

Luiz Solano (São Paulo, 1995) é arquiteto formado pela Escola da Cidade, em 2018. Em 2019, fundou Clube, com Gabriel Biselli, onde foi responsável por projetos de arquitetura e mobiliário. No Clube, tiveram trabalhos selecionados em concursos de arquitetura, publicados em revistas independentes e presentes em exposições, no Brasil e no exterior. Também organizaram uma série de palestras, exposições e workshops com arquitetas e arquitetos do Brasil e do mundo.

 

Em julho de 2022, Luiz Solano fundou seu próprio escritório de arquitetura, baseado em São Paulo, Brasil. O escritório se localiza nos Campos Elíseos, junto à fabrica onde as peças são produzidas. Além da produção de mobiliário, o escritório se dedica a projetos de arquitetura e promoção de eventos dedicados à discussão das disciplinas de arquitetura e design. No espaço do escritório, além do showroom do mobiliário em estoque, aconteceram 3 eventos desde a sua abertura: 1 exposição coletiva de arte e 2 exposições de mobiliário de escritórios convidados.

Formação

2013-2018

Graduação em Arquitetura e Urbanismo pela Escola da Cidade, em São Paulo.

2015

Workshop I.U.A.V., em Veneza, Itália.

2017

Intercâmbio no Politécnico di Milano, em Milão, Itália.

Atuação

2016-2017

Grupo Técnico da Escola da Cidade, São Paulo, Brasil (estágio/internship)

2017

Salottobuono, Milão, Itália (estágio/internship)

2018

Metro Arquitetos, São Paulo, Brasil (estágio/internship)

2019-2022

Clube, São Paulo, Brasil (ex-sócio-fundador/ex-founding partner)

Camila Alba
Gabriel Murad

 

Colaboradores passados

Renan Marques


Site
Design e Desenvolvimento: Sarah Matos
Shopify: Julia Baptista

Fechar

2023

IAB-SP – cadeira SM1 premiada na categoria objetos da premiação anual do Instituto dos Arquitetos do Brasil

2019

Outros Territórios – proposta selecionada em concurso de arquitetura. Belo Horizonte, Brasil (CLUBE)

2019

O Turvo, São Paulo (CLUBE)

2019

Acces for All — São Paulo’s Architectural Infrastructures, Zurich (CLUBE)

2020

NESS Magazine, Buenos Aires (CLUBE)

2020

Unlearning Public Spaces — Täglich Trendbook, Stuttgart (CLUBE)

2020

Carte Blanche n. 6, Paris (CLUBE)

2021

Revue Fantome #3, Paris (CLUBE)

2021

Podcast: Antropofago Productions, Milão (CLUBE)

2024

PLOT #71, Buenos Aires (CLUBE)

Fechar

2019

Duas das Cinco – exposição coletiva O Grande Susto, de curadoria de Guilherme Teixeira. São Paulo, Brasil (CLUBE)

2020

Please do not disturb – exposição individual de curadoria de Facundo Fernández no MONTE. Buenos Aires, Argentina (CLUBE)

2021

De ontem pra hoje já era amanhã – participação em exposição individual de pedro frança na Galeria Jaqueline Martins. São Paulo, Brasil (CLUBE)

2021

Meião – exposição coletiva Disfuncional com curadoria de Marina Dalgalarrondo na Galeria Jaqueline Martins. São Paulo, Brasil (CLUBE)

2021

A Bruta Flor do Querer – exposição coletiva Cinema Nervi, com curadoria de Parasite 2.0 no Manifattura Tabacchi. Florença, Itália (CLUBE e Martinica Space)

2023

Fundo Falso – exposição coletiva, na Acrilar. São Paulo, Brasil

2023

DW23 – exposição coletiva de mobiliário, na Galeria Metrópole. São Paulo, Brasil

2023

MADE – participação em feira de design, no estádio do Pacaembú. São Paulo, Brasil

2024

Sp-Arte – exposição coletiva “Tátil: materiais no design contemporâneo”, com curadoria de Livia Debbané, no pavilhão da Bienal. São Paulo, Brasil

2024

Oco Ocê – participação em exposição coletiva, com curadoria de Marina Schiesari, no Quase Espaço. São Paulo, Brasil

2019

Rooms, etc. – exposição independente de trabalhos do escritório italiano Salottobuono. São Paulo, Brasil (CLUBE)

2019

Conforto Prescrito – exposição independente de trabalhos do escritório argentino Flora Oficina. São Paulo, Brasil (CLUBE)

2020

Arquiteturas de Lugar Nenhum – exposição independente de trabalhos do workshop. São Paulo, Brasil (CLUBE e Parasite 2.0)

2021

Disfuncional – exposição coletiva com curadoria de Marina Dalgalarrondo na Galeria Jaqueline Martins. São Paulo, Brasil (CLUBE)

2021

Depois da Pedra – exposição individual de Paulo Pires com curadoria de Germano Dushá na Mendes Wood DM. São Paulo, Brasil (CLUBE)

2019

Os Espaços de Arquitetura – conversa com Davide Sacconi (CAMPO) e Abdelkader Damani (FRAC Centre-Val de Loire). São Paulo, Brasil (CLUBE)

2019

Rooms, etc. – exposição independente e palestra do escritório italiano Salottobuono. São Paulo, Brasil (CLUBE)

2019

Arquiteturas de Lugar Nenhum – palestra e workshop com Parasite 2.0. São Paulo, Brasil (CLUBE)

2020

Arquiteturas de Lugar Nenhum – palestra e workshop com Parasite 2.0. São Paulo, Brasil (CLUBE)

2023

Fundo Falso – exposição coletiva com organização de Ainda Brasil. São Paulo, Brasil.